NAM CHÂM NÂNG HẠ THÉP TẤM TỰ ĐỘNG DPL-TAU TYPE
Thông tin chi tiết
-
Bao gồm 2 nam châm hoạt động đồng bộ để hút và nâng vật liệu.
-
Phù hợp để sử dụng ở những vị trí lệch, không bằng phẳng (deflected locations).
-
Cơ chế Auto ON/OFF không cần điện, giúp vận hành đơn giản, tiết kiệm và phù hợp với môi trường không có nguồn điện.
-
Tải trọng từ 2.000 kg đến 12.000 kg (ví dụ: DPL-200TAU, DPL-400TAU, DPL-600TAU, DPL-800TAU, DPL-1000TAU, DPL-1200TAU) với thông số rõ ràng từ nhà sản xuất.
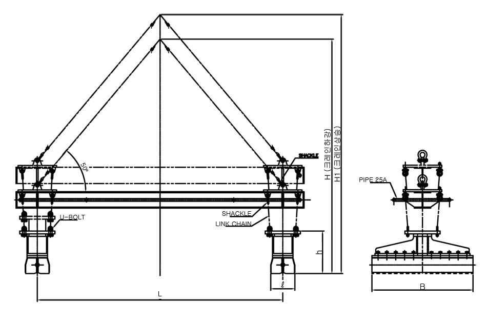
BẢNG VẼ CHI TIẾT NAM CHÂM NÂNG TỰ ĐỘNG HÀN QUỐC DPL-TAU TYPE

THÔNG SỐ KỸ THUẬT CHI TIẾT NAM CHÂM NÂNG TỰ ĐỘNG HÀN QUỐC DPL-TAU TYPE
| TYPE | HOLDING POWER(kg) | DIMENSION(mm) | WEIGHT | |||||
| B | ℓ | L | h | H | H1 | (kg) | ||
| DPL-200TAU | 2000 | 367 | 255 | 2000 | 399 | 1800 | 1930 | 440 |
| DPL-400TAU | 4000 | 512 | 317 | 2000 | 477 | 2200 | 2380 | 750 |
| DPL-600TAU | 6000 | 657 | 317 | 2500 | 527 | 2300 | 2480 | 980 |
| DPL-800TAU | 8000 | 802 | 317 | 2500 | 527 | 2400 | 2580 | 1050 |
| DPL-1000TAU | 10000 | 1092 | 317 | 2500 | 532 | 2400 | 2580 | 1300 |
| DPL-1200TAU | 12000 | 1237 | 317 | 2500 | 532 | 2500 | 2680 | 1600 |
DỊCH VỤ TRỌN GÓI TỪ HI-TECH - AN TÂM TUYỆT ĐỐI CHO KHÁCH HÀNG
HI-TECH không chỉ là đơn vị cung cấp máy công cụ, thiết bị chính hãng mà còn là đối tác cung cấp giải pháp toàn diện. Chúng tôi hiểu rằng việc mua máy là một khoản đầu tư lớn, vì vậy chúng tôi mang đến các dịch vụ “chìa khóa trao tay” để đảm bảo sự hài lòng tuyệt đối của bạn:
- ● Tư vấn chuyên sâu: Đội ngũ kỹ sư giàu kinh nghiệm của HI-TECH sẽ lắng nghe nhu cầu của bạn để đề xuất dòng máy và model phù hợp nhất.
- ● Dịch vụ Door-to-Door (Vận chuyển từ kho đến kho): Chúng tôi chịu trách nhiệm toàn bộ quá trình logistics, từ nhà máy sản xuất đến tận cửa nhà xưởng của bạn, bao gồm cả thủ tục hải quan.
- ● Lắp đặt, chuyển giao công nghệ & Đào tạo: Đảm bảo máy được lắp đặt chính xác, chạy thử nghiệm và đội ngũ của bạn được đào tạo chuyên nghiệp để vận hành hiệu quả.
- ● Dịch vụ Hậu mãi & Bảo trì: Với kho phụ tùng chính hãng sẵn có và đội ngũ kỹ thuật viên lành nghề, chúng tôi cam kết hỗ trợ nhanh chóng, kịp thời, đảm bảo máy luôn hoạt động ổn định.
- ● Giải pháp Turnkey Project: Đối với các doanh nghiệp muốn đầu tư nhà máy mới, chúng tôi cung cấp giải pháp trọn gói từ A-Z, từ tư vấn thiết kế layout nhà xưởng đến cung cấp toàn bộ thiết bị và đưa vào vận hành.


Chúng tôi cung cấp dịch vụ trọn gói, từ tư vấn chọn thiết bị phù hợp, lắp đặt chuyên nghiệp đến bảo trì, hỗ trợ kỹ thuật sau bán hàng.
- Hotline: 0965 868 268 – 0965 798 767
- Email: sales@thietbihitech.com.vn
- Website: hitecco.vn
